Woodless construction : 1
…constructing quality buildings using unfired earth bricks and vault and dome roofs.
No cement, no presses, no corrugated iron
Using woodless construction techniques, the builders trained by DW can undertake a wide range of buildings, from simple single-room forms to high quality villas and offices..
Using woodless construction has several advantages…
- Protecting the environment, since no wood is used for the roof
- Generating local income, by using local labour and local materials, thus benefiting the local economy
- Providing an exceptional degree of natural, ecological climate comfort.
- Avoiding the need to obtain costly permits for cutting wood
- Achieving decent and sustainable housing.
- Flexible buildings depending on each individual’s means and resources : the owner can decide on the quality of interior and exterior finishings, which can be basic or very sophisticated.
And in the Sahel?
Woodless construction has existed in the Sahel for the past 25 years. Hundreds of builders have been trained in Niger, in Mali, in Mauritania and in Burkina Faso, and several hundred buildings constructed.
DW
DW has thirty years’ experience in woodless construction, in Egypt, in Iran and in West Africa.
DW is a non profit association active in Burkina Faso, having introduced these techniques to the region over 25 years ago and providing ongoing technical assistance to builders

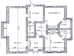
Houses and high quality villas
Woodless construction is perfectly suitable for high quality housing.
The DW woodless construction team can prepare a choice of plans for you, taking account of your needs and of the means at your disposal.
You choose the nature of the finishings, and what sanitary and electrical installations you would like –
interior tiling,
modern bathroom,
various choices of flooring and painting,
solar energy, etc
–

Woodless construction provides an exceptional degree of climate comfort. You can even economise on air-conditioning, thanks to woodless construction’s thermal qualities
The cost of a woodless construction building varies with local conditions
Why not ask the woodless construction team for an estimate?
Burkina
Faso | 1998 World Habitat Award | download : "Woodless Construction: Using unstabilised earth bricks and vault and dome roofing in West Africa, DW, 1998-2002" (.pdf)
